We bring the whole team to give you a powerful advantage
Learn More
Sold
Land

19 Kingaroy Street Medowie, NSW 2318

Sold on 14 Feb 2024
  • Land: 522m² (0.13 acres)
Agents

Sold By

  • Loading...
  • Loading...
19 Kingaroy Street, Medowie, NSW 2318

Land in Medowie

Vacant Land / DA Plans

  • Land: 522m² (0.13 acres)

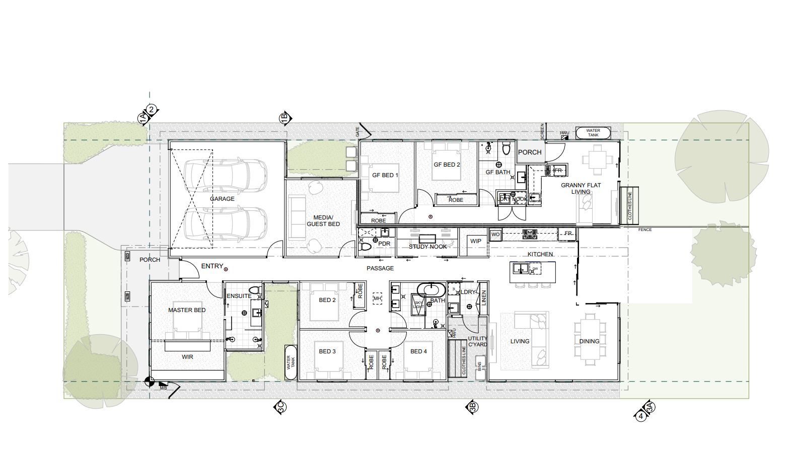
Vacant land in a sought-after street, surrounded by quality homes, with a complying development certificate approved and ready to build a single-level four-bedroom home, offering more, alongside a separate two-bedroom granny flat. Ideal for dual investment properties or as two dwellings on one title, this setup would suit retirees seeking a residence without steps, coupled with an income opportunity.
An outstanding opportunity is just a call away!!!

Land:

522m² / 0.13 acres